Angle Right

Angle Right

Angle Right

Ablauf/Unterteil mit Grundplatte

Ablauf/ Unterteil mit Grundplatte

Flachdach-Ablauf/ Unterteil

Mit Grundplatte

Rohrlängen individuell anpassbar

Bestellbare Flansche:

  • Bitumenbahn PYE PV-250 S5


Bestellbare Größen: 

DN 50 - DN 200


Die Bauweise kann sich ab DN 150 von den Abbildungen/Zeichnungen unterscheiden.

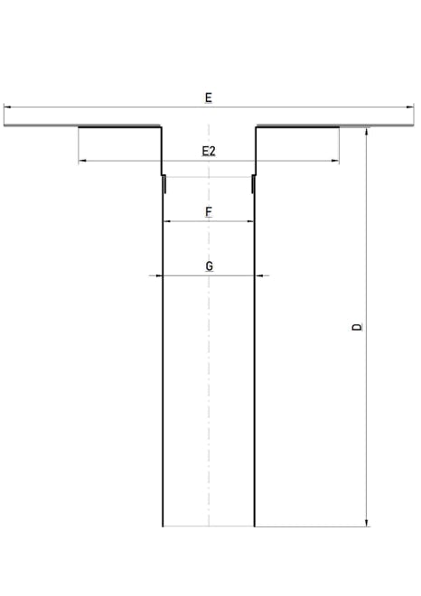
Technische Daten

Flachdach-Ablauf/Unterteil mit Flansch aus PYE

Zeichnung Udo Huppers GmbH Flachdach-Unterteil XL mit PVC- Flansch

Nennweite

(mm)

(mm)

E2

(mm)

F

(mm)

G

(mm)

DN 50

430

480

322

45

50

DN 70

457

480

322

70

75

DN 100

455

480

372

105

110

DN 125

457

480

372

120

125

DN 150

458

480

400

155

160

DN 200

457

750

440

195

200

Weitere technische Daten und Informationen finden Sie hier.

Die hier abgebildeten Zeichnungen beziehen sich auf Baumuster in DN 100. Bauteile in anderen Größen (vor allem ab DN 150) können von den Zeichnungen abweichen. Bitte beachten Sie fertigungsbedingte Maßtoleranzen von +/-10 mm.

Suchbegriffe: 

Ausschreibungstexte

Huppers Flachdach-Ablauf DN 50 mit Grundplatte PYE 

Senkrechter Flachdach-Ablauf/ Gully aus witterungsstabilem und schlagzähen PVC-U zur Freispiegelentwässerung. Anschlussmanschette aus PYE-PV-250 S5.


Rohrlänge 400mm (Rohrlänge von bis zu 1200 mm möglich. Auch wärmegedämmt mit PUR-Schaum oder Dämmhülse lieferbar.)


Nennweite: DN 50

Artikel-Nr.: 1003009002

GTIN: 4262468986173

Hersteller: Udo Huppers GmbH


Brandschutzklasse/Baustoffklasse B2


liefern, fachgerecht in Öffnung einbauen, im Untergrund befestigen, an die Dämmstoffstärke anpassen und an die Dachabdichtung anschließen.

Huppers Flachdach-Ablauf DN 70 mit Grundplatte PYE 

Senkrechter Flachdach-Ablauf/ Gully aus witterungsstabilem und schlagzähen PVC-U zur Freispiegelentwässerung. Anschlussmanschette aus PYE-PV-250 S5.


Rohrlänge 400mm (Rohrlänge von bis zu 1200 mm möglich. Auch wärmegedämmt mit PUR-Schaum oder Dämmhülse lieferbar.)


Nennweite: DN 70

Artikel-Nr.:  1003009003

GTIN: 4262468986180

Hersteller: Udo Huppers GmbH


Brandschutzklasse/Baustoffklasse B2


liefern, fachgerecht in Öffnung einbauen, im Untergrund befestigen, an die Dämmstoffstärke anpassen und an die Dachabdichtung anschließen.

Huppers Flachdach-Ablauf DN 100 mit Grundplatte PYE 

Senkrechter Flachdach-Ablauf/ Gully aus witterungsstabilem und schlagzähen PVC-U zur Freispiegelentwässerung. Anschlussmanschette aus PYE-PV-250 S5.


Rohrlänge 400mm (Rohrlänge von bis zu 1200 mm möglich. Auch wärmegedämmt mit PUR-Schaum oder Dämmhülse lieferbar.)


Nennweite: DN 100

Artikel-Nr.:  100309004

GTIN: 4262468986418

Hersteller: Udo Huppers GmbH


Brandschutzklasse/Baustoffklasse B2


liefern, fachgerecht in Öffnung einbauen, im Untergrund befestigen, an die Dämmstoffstärke anpassen und an die Dachabdichtung anschließen.

Huppers Flachdach-Ablauf DN 125 mit Grundplatte PYE 

Senkrechter Flachdach-Ablauf/ Gully aus witterungsstabilem und schlagzähen PVC-U zur Freispiegelentwässerung. Anschlussmanschette aus PYE-PV-250 S5.


Rohrlänge 400mm (Rohrlänge von bis zu 1200 mm möglich. Auch wärmegedämmt mit PUR-Schaum oder Dämmhülse lieferbar.)


Nennweite: DN 125

Artikel-Nr.: 100309005

GTIN: 4262468986425

Hersteller: Udo Huppers GmbH


Brandschutzklasse/Baustoffklasse B2


liefern, fachgerecht in Öffnung einbauen, im Untergrund befestigen, an die Dämmstoffstärke anpassen und an die Dachabdichtung anschließen.

Huppers Flachdach-Ablauf DN 150 mit Grundplatte PYE 

Senkrechter Flachdach-Ablauf/ Gully aus witterungsstabilem und schlagzähen PVC-U zur Freispiegelentwässerung. Anschlussmanschette aus PYE-PV-250 S5.


Rohrlänge 400mm (Rohrlänge von bis zu 1200 mm möglich. Auch wärmegedämmt mit PUR-Schaum oder Dämmhülse lieferbar.)


Nennweite: DN 150

Artikel-Nr.: 100309006

GTIN: 4262468986432

Hersteller: Udo Huppers GmbH


Brandschutzklasse/Baustoffklasse B2


liefern, fachgerecht in Öffnung einbauen, im Untergrund befestigen, an die und an die Dachabdichtung anschließen.

Huppers Flachdach-Ablauf DN 200 mit Grundplatte PYE 


Senkrechter Flachdach-Ablauf/ Gully aus witterungsstabilem und schlagzähen PVC-U zur Freispiegelentwässerung. Anschlussmanschette aus PYE-PV-250 S5.


Rohrlänge 400mm (Rohrlänge von bis zu 1200 mm möglich. Auch wärmegedämmt mit PUR-Schaum oder Dämmhülse lieferbar.)


Nennweite: DN 200

Artikel-Nr.: 100309007

GTIN: 4262468986449

Hersteller: Udo Huppers GmbH



Brandschutzklasse/Baustoffklasse B2


liefern, fachgerecht in Öffnung einbauen, im Untergrund befestigen, an die Dämmstoffstärke anpassen und an die Dachabdichtung anschließen.

Udo Huppers GmbH

Landwehr 130

46515 Schermbeck

Tel.: 02853-914610

Mail: info@huppers-dach.de

Gelisteter Lieferant 

bei allen großen Einkaufskooperationen

Diese Website verwendet Cookies. Bitte lesen Sie unsere Datenschutzerklärung für Details.

Verweigern

OK